두 각재의 맞춤 방법 중 가장 옳은 것은? - 가구제작기능사 기출문제
팝업레이어 알림
팝업레이어 알림이 없습니다.
기출넷
함께 성장하는 기출넷, 당신의 성공을 응원합니다!
기출넷
0
모의시험
온라인 모의시험
실시간 모의시험 결과
오답노트
기출해설
스터디룸
운전기능사
조리기능사
미용사
이용사
제과/제빵기능사
전기기능사
정보처리기능사
산림기능사
통합 과목
모의시험
온라인 모의시험
실시간 모의시험 결과
오답노트
기출해설
스터디룸
운전기능사
조리기능사
미용사
이용사
제과/제빵기능사
전기기능사
정보처리기능사
산림기능사
통합 과목
메인
모의시험
오답노트
기출해설
스터디룸
0
홈 > 기출해설 > 가구제작기능사
가구제작기능사
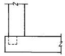
두 각재의 맞춤 방법 중 가장 옳은 것은?
문제풀이 모드
0
03.22 15:35
정답률 : -
풀이 준비
두 각재의 맞춤 방법 중 가장 옳은 것은?
채점하기
2004년02월01일
0
Comments
로그인한 회원만 댓글 등록이 가능합니다.
목록
이용안내
시행일
과목 또는 시행일 탭 내의 과목 및 시행일을 클릭하시면, 해당 과목 및 시행일의 문제만 필터링하여 볼 수 있습니다.
'문제풀이 모드'와 '속성암기 모드' 중 선택하여 학습을 진행할 수 있습니다.
'다음문제'를 클릭하시면 동일 시험의 문제 중 학습에 가장 효과적인 다음 문제로 이동합니다.
2001년10월14일
2002년01월27일
2002년10월06일
2003년01월26일
2003년10월05일
2004년02월01일
2004년10월10일
2005년01월30일
가구제작기능사 모의시험 바로 시작
지금 바로 이 과목 모의시험을 풀어보실 수 있어요.
시험 시작하기
번호
문제
정답률(%)
176
준비
다음은 몰더의 작업공정이다. 현재 제시된 공정의 순서 중 가장 후 순위는?
정답률 : -
-
175
준비
목재 접합 때 접착제로 좋은 아교 선별법 중 맞지 않은 것은?
정답률 : 67%
67
174
준비
다음 그림과 같이 가공하고자 한다. 주로 어느 목공기계가 사용되는가?
정답률 : -
-
173
준비
평대패에서 대팻날을 끼우는 물매 또는 끊는 날의 각은 몇 도 인가?
정답률 : -
-
172
준비
곡면 안쪽의 대패질에 사용되며, 대팻집이 짧고 원과 호의 크기에 따라 규격이 다양한 대패는?
정답률 : 73%
73
171
준비
목재의 맞춤기법 중 한 부재의 나뭇결이나 나뭇결과 직각 방향으로 오목하게 들어가도록 깎아내고, 다른 부재의 옆면이나 마구리면을 맞추는 기법은?
정답률 : 42%
42
170
준비
끝손질 대패에서 대패날 날끝이 대팻집 바닥에서 어느 정도 나오는 것이 좋은가?
정답률 : -
-
169
준비
나무못박기에 관한 내용 중 옳지 않은 것은?
정답률 : -
-
168
준비
꽂음촉 맞춤 작업시 가장 중요하고 어려운 작업은 ?
정답률 : -
-
167
준비
목재 손잡이가 달린 서랍을 만드는데 필요한 부재의 숫자는?
정답률 : -
-
166
준비
상해의 발생 형태 중 물건에 끼워진 상태나 말려든 상태는?
정답률 : -
-
165
준비
무늬목 붙이기 방법 중 틀리게 기술된 것은?
정답률 : -
-
164
준비
다음 그림과 같은 장부의 이름은?
정답률 : -
-
163
준비
평장부 만들기에서 잘못된 것은?
정답률 : -
-
열람중
준비
두 각재의 맞춤 방법 중 가장 옳은 것은?
정답률 : -
-
161
준비
주먹맞춤이 꼭 필요한 경우는?
정답률 : -
-
160
준비
목재에 먹줄치기를 할 때 주의할 사항으로 옳지 않은 것은?
정답률 : 54%
54
159
준비
다음 못박기 중 가장 이상적인 것은?
정답률 : -
-
158
준비
가구제작에서 조립후에 바로 확인하지 않아도 될 사항은?
정답률 : -
-
157
준비
다음 그림은 몇장 사개맞춤인가?
정답률 : 92%
92
156
준비
가구제작의 마무리 작업내용으로 적당하지 않은 것은?
정답률 : -
-
155
준비
목재의 접합에 관한 기술 중 틀린 것은?
정답률 : -
-
154
준비
다음 중 톱니가 막니로 되어 있지 않는 것은?
정답률 : -
-
153
준비
막대패날은 대패집에서 보통 어느 정도 내밀어서 사용하는가?
정답률 : -
-
152
준비
활엽수의 구조중 도관(물관)의 설명으로 옳은 것은?
정답률 : -
-
151
준비
알루미늄에 대한 설명으로 옳지 않은 것은?
정답률 : -
-
150
준비
금속재료가 다른 재료와 비교하여 결점으로 볼 수 없는 것은?
정답률 : 58%
58
149
준비
밀폐된 처리장치 속에 목재를 넣고 배기와 가압을 적당히 조합하여 약제를 목재에 가압 주입하는 방법으로서 약제의 침투깊이가 깊고 균일하며 흡수량도 많아 …
정답률 : -
-
148
준비
하나의 경첩으로서 양방향으로 개폐할 수 있는 철물은?
정답률 : -
-
147
준비
단백질계 접착제의 재료가 아닌 것은?
정답률 : 86%
86
146
준비
합판에 대한 설명 중 맞지 않는 것은?
정답률 : 62%
62
145
준비
베니어 제조법에서 로터리 베니어에 관한 설명 중 틀린 것은?
정답률 : 67%
67
144
준비
못의 지보력이 가장 좋은 재료는?
정답률 : -
-
143
준비
다음 합성수지에 관한 설명 중 틀린 것은?
정답률 : -
-
142
준비
침엽수와 활엽수에 대한 설명으로 잘못된 것은?
정답률 : -
-
141
준비
다음과 같이 목재 마구리면에 제재 계획을 세웠다. 곧은 결 판재는 어느 것인가?
정답률 : 85%
85
140
준비
다음 중 나이테가 없는 나무는?
정답률 : -
-
139
준비
주로 활엽수에 있는 것으로, 섬유보다 크고 굵은 세포가 섬유와 같은 방향으로 들어 있는 것의 명칭은?
정답률 : -
-
138
준비
목재의 벌목 시기로 가장 알맞는 계절은?
정답률 : -
-
137
준비
성장에 따른 분류 중 내장수에 해당하는 것은?
정답률 : -
-
136
준비
목재 인공건조법 중에서 가장 널리 쓰이는 것은?
정답률 : -
-
135
준비
목재의 성질과 변형에 관한 내용 중 틀린 것은?
정답률 : -
-
134
준비
통나무에서 어느방향이 수축율이 가장 큰가?
정답률 : -
-
133
준비
원목을 1 - 2개월 물 속에 담갔다가 수증기를 통과시켜 주는 이유는?
정답률 : -
-
132
준비
여러 가지 곡선을 자유롭게 그리는데 사용되는 제도용구로 납과 고무로 만들어져 자유롭게 구부릴 수 있는 제도용구는?
정답률 : -
-
131
준비
투시도의 작성법 중 구도를 결정할 때 시선의 각도는 몇 도 이내로 하는 것이 가장 자연스러운가?
정답률 : 54%
54
130
준비
치수선 및 치수보조선에 대한 설명으로 옳지 않은 것은?
정답률 : -
-
129
준비
붙박이 가구를 디자인할 경우 고려할 사항으로 옳지 못한 것은?
정답률 : -
-
128
준비
아래 그림은 직각을 3등분하는 방법인데 길이의 설명이 틀린 것은?
정답률 : -
-
127
준비
도면 방향으로 평면도,배치도 등은 원칙으로 어느 방향을 위로하여 제도하는가?
정답률 : -
-
126
준비
그림에서 표시 선은?
정답률 : -
-
125
준비
가구제도시 치수기입에 대한 기술중 옳지 않은 것은?
정답률 : -
-
124
준비
다음 중 조형의 요소가 아닌 것은?
정답률 : -
-
123
준비
다음 의장의 원리중 율동미와 관계가 먼 것은?
정답률 : -
-
122
준비
일반적으로 좌면, 등받침, 팔굽받침 등 인체를 직접 지탱하는 지지부분과 이 지지부분을 받치고 있는 다리 부분에 의하여 구성되어 있는 가구는?
정답률 : -
-
121
준비
투시도법이 투상도법과 다른점이 아닌 것은?
정답률 : -
-
120
준비
다음 중 시점이 가장 높은 투시도는?
정답률 : -
-
119
준비
입체의 각 면을 1면 위에 펴서 그린 도면을 무엇이라 하는가?
정답률 : -
-
118
준비
가구제도용에 사용하는 제도판의 재료는 보통 무절 판재를 사용하는데 적당한 것은 어느 것인가?
정답률 : -
-
117
준비
가구에서 착색이 자유롭고 견고하며 내열성 전기 절연성이 우수하여 실내장식 및 가구재료로 사용되는 합성수지는?
정답률 : -
-
초기화
날짜순
조회순
정렬
검색
1
2
3
4
5
6
7
8
Search
검색대상
제목
내용
제목+내용
회원아이디
회원아이디(코)
글쓴이
글쓴이(코)
또는
그리고
검색어
필수
검색
닫기